Cliente: Ferconsult, S.A. / Metropolitano de Lisboa, E.P.E.

Local: Campo Grande, Lisboa - Portugal

Data Projecto: 2018 - 2019

Autoria: Daniel Sousa

Serviços Prestados: Anteprojecto de Civil


Descrição Sumária: Aquisição de serviços de Engenharia Civil no âmbito do Projeto para a ligação das Linhas Verde e Amarela, Rato – Cais do Sodré (Linha Circular do Metropolitano de Lisboa, E.P.E.)


As novas obras pretendem unir entre si duas linhas atualmente

independentes a Poente da Estação do Campo Grande permitindo a criação de uma nova linha circular que integrando os percursos das duas linhas anteriormente separadas.

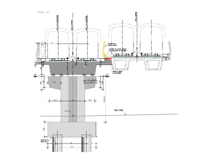
Para o efeito e porque essas ligações são feitas sobre o nó viário que liga a Av. Padre Cruz com a 2ª Circular recorre a dois novos viadutos:

• Um com cerca de 430m desviando a actual linha Amarela para Norte e ligando a Telheiras

• Outro com cerca de 160m desviando uma atual Linha Verde do viaduto existente e ligando-a à Linha Amarela existente

O projeto foi desenvolvido por forma a que a obra se faça sem interrupção do serviço nas duas linhas e minimizando os condicionamentos das vias rodoviárias existentes sob os viadutos, o que confere uma peculiaridade especial às obras no que se refere aos sistemas disponíveis, planeamento construtivo e faseamento da obra.

Linha Circular Metro de Lisboa – Viadutos do Campo Grande