Client: Metro do Porto, S.A. (Société Métro de Porto), Département de Projet de Metro do Porto, S.A.

Localisation: Porto, Portugal

Date du projet: 2018 - 2019

Projet de: Daniel P. Sousa / Pedro B. Carvalho

Prestations: Avant-projet ; Projet d’Exécution


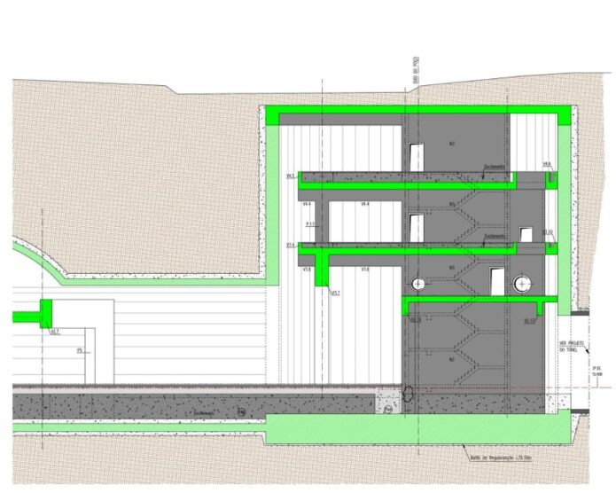
Description: Compte tenu des conditions identifiées, à savoir le Jardim do Carregal (nécessité de préserver les arbres d’intérêt public), le tunnel routier de Ceuta et la traversée de cette zone par la rivière Frio, ainsi que la profondeur du nouveau métro, la station Hospital de Santo António (HSA) est une station minière avec 2 cavernes. La station est composée de:

1 puits, qui comprend deux accès d'urgence et 3 étages pour les zones techniques; 1 caverne profonde avec 2 niveaux, traversée au milieu de la mezzanine; 1 puits situé au bout de la caverne du mezzanine dans lequel sont insérés deux étages pour les salles de ventilation; Caverne du mezzanine (orientée à 66 degrés de la précédente à 3 niveaux: fondations, plate-formes et mezzanine), où commencent les galeries d’accès.

La station HSA occupe une superficie totale de déploiement de 4 490 m² et une surface de bâtiment brute de 10 960 m² correspondant à 6 niveaux différents, pour un volume total de 79 700 m³. On estime que la nouvelle ligne sera utilisée en moyenne par environ 28 000 passagers par jour.

Station de l’Hospital de Santo António